2021年5月,奉贤区实施乡村振兴战略工作领导小组举行会议,研究农村综合帮扶物业购置及农村集体土地入市等有关工作,推动乡村振兴落地落小落实。奉贤区委书记庄木弟强调,要贯彻落实习近平总书记在广西考察期间重要讲话精神,坚定走解放思想、深化改革之路,走面向世界、扩大开放之路,走打破常规、创新突破之路,把实施乡村振兴战略作为奉贤经济社会发展最基础的设施,抢抓新城建设、国家农村宅基地制度改革试点等机遇,科学规划,统筹推进,切实处理好城与乡、市场与政府、壮大集体经济和增加农民收入的关系,实现城乡空间蝶化,打造乡村振兴千亿级发展格局。奉贤区代区长袁泉指出,要明确目标,找准路径,列出时间表、任务书,紧紧抓住农村集体土地入市这一有效途径,全面梳理、盘活本区资产、资金、资源,为下一轮转型发展提供更大发展空间。

光明科技创业孵化基地建设工程,是奉贤区实施乡村振兴和科技创新战略,打响奉贤乡村振兴三大品牌,着力打造农艺公园•田园综合体、三园(院)一总部和生态村组•和美宅基的重要举措;是奉贤区南桥镇党委按照“农业强、农村美、农民富”的总目标以及中央、市委、区委实施乡村振兴战略工作会议精神,围绕优化新城、镇域、乡村的整体布局,抓好建设,加强人居环境整治,彰显乡村综合价值,让农民拥有更多获得感的务实工程。
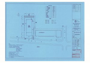
项目位于南桥镇郊野单元(FXNQJY09)图则中的02-02地块,东至上海子泰塑胶制品有限公司,南至万众路,西至上海光明村农家乐休闲中心,北至上海绿苑玻璃有限公司。项目地块类型为规划建设用地中的经营性设施用地,地块编号02-02,用地性质代码C2,用地面积2,504平方米,容积率≤1.2、建筑高度≤15米。
项目主要建设内容为光明科技创业孵化基地(现状为私营企业生产经营场地),共二栋建筑,其中,一栋现状为生产车间和办公室,建筑面积4,248.5平方米(计容建筑面积),5层建筑(局部3层)、建筑高度18.2米;一栋现状为配电房,建筑面积32平方米(计容建筑面积)、2层建筑。
项目现状总用地面积2,988平方米,总建筑面积4,280.5平方米,总计容建筑面积4,280.5平方米,容积率1.43、建筑密度43.2%、建筑高度18.2米、绿地率8.4%、机动车停车位8个。项目建设期6个月,计划2021年7月开工建设,2021年12月竣工验收。项目总投资在工程可行性研究阶段明确,所需资金由南桥镇光明经济合作社筹措。
项目在上海市和奉贤区乡村振兴战略的指导下,突破传统套路,确立新思路,建设好创业孵化基地,把发展经济的着力点放在如何做强做优做大实体经济的竞争力上,把提高供给体系质量作为经济发展和改革的主攻方向,作为解决光明村经济当前关键短板的牛鼻子,发挥创业孵化基地功能作用,引入产业基础配套,推进小微企业整合入园,集中发展,通过集中配套,有效降低企业投资成本,规范管理,提高园区承载能力,延长产业链条。
项目与南桥镇区域规划相协调、与光明村当地资源条件相适应、与二三产业发展相衔接,提升了经济园区服务层次,促进了资源合理利用。报告通过详尽的实地调研和数据论证,从项目所处的社会背景出发,分析宏观政策环境对项目建设实施的引导作用、社会经济环境对乡村振兴及项目建设的重要意义和紧迫性。
根据对社会、经济、环境等方面影响的分析论证,项目结合光明村的资源环境和实际条件,营造园区集群创新环境,为园区企业发展提供现代化的基础设施、便利的交通通讯、配套的生产服务设施;搭建园区良好的信息、服务平台,打破园区创新主体间的联系阻隔,加强彼此间的交流合作,促使园区企业的创新活动产生协同,提高园区的创新活力和创新效率,推动园区经济持续成长,真正代表了光明村的利益,是光明村民幸福生活的可靠保证。项目有利于推进经济园区建设发展,不仅是当前发展光明科创产业集群的需要,更是加快新型工业化进程的必然选择,也是完成工业强村的必然途径,在确保农民既得利益的前提下,展现乡村振兴的真正要义。
因此,本项目的投资建设是十分必要的、是非常可行的。
